Montemares Villa 8

Instruction to Sell £995,000

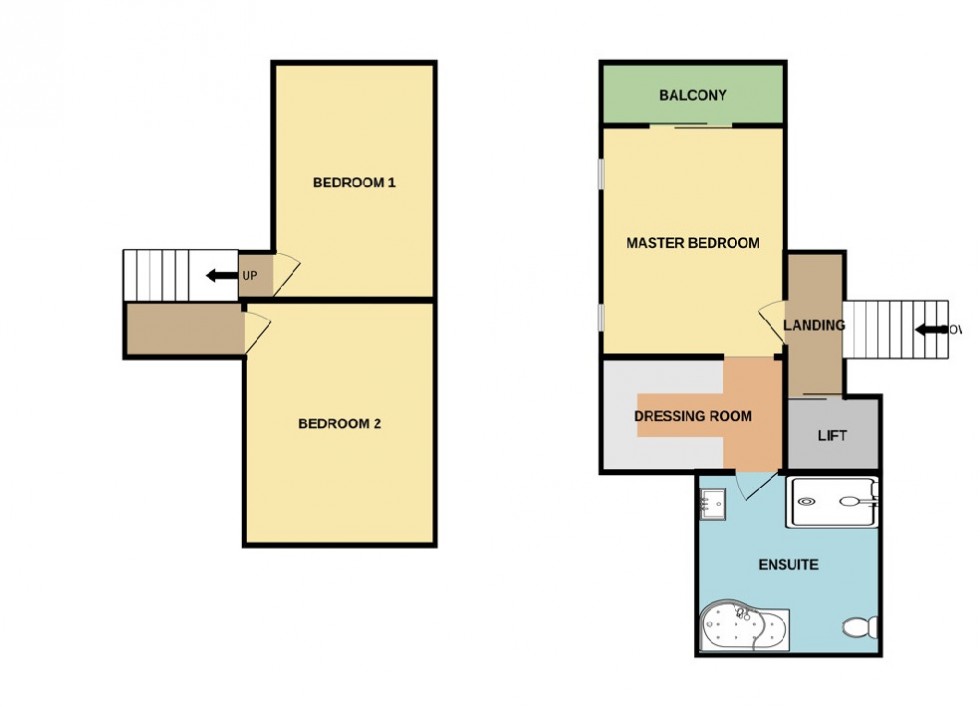
6 4 1

This fantastic, recently refurbished 6-bedroom, 4-bathroom property stands as a testament to high-quality craftsmanship and modern luxury. Built to an exceptionally high standard, the villa features expansive terraces that enhance the living space, seamlessly connecting indoor and outdoor areas. The highlight of the property is undoubtedly the large private heated swimming pool, perfect for year-round enjoyment, offering lovely views of the renowned La Manga Club. Situated in one of the most recently completed communities on a hillside near the Mediterranean Sea, this modern villa combines contemporary design with natural beauty. The location offers a perfect blend of tranquility and convenience, with easy access to the vibrant amenities of the surrounding area, including beaches, shops, and dining options. Inside, the villa boasts a modern decorative order, characterized by sleek lines and high-end finishes. Every room is equipped with high-quality fittings, ensuring longevity and elegance. The spacious layout provides endless possibilities for personalization and use, whether you’re looking to create a family home, a holiday retreat, or an investment opportunity. The community itself is newly developed, promising modern infrastructure and a fresh, inviting environment. The proximity to the Mediterranean adds to the allure, offering opportunities for water sports, leisurely beach days, and stunning coastal views. Overall, this property is a luxurious haven, ideal for those seeking a sophisticated lifestyle in a picturesque setting. Viewing this villa is definitely a must to truly appreciate the quality, comfort, and breathtaking views it offers. If you're interested, scheduling a visit soon would be a wise decision to explore all that this exceptional property has to offer.

  • 6 Bedrooms
  • 4 Bathrooms
  • Private Pool
  • Double Garage
  • Putting Green
  • Games Room
  • Amazing views
  • Recenty modernised
Floorplan for La Manga Club, Spain, Cartagena Floorplan for La Manga Club, Spain, Cartagena Floorplan for La Manga Club, Spain, Cartagena

Get an online valuation

Find out how much your property is worth