El Rancho 59

For Sale Guide Price, £295,000

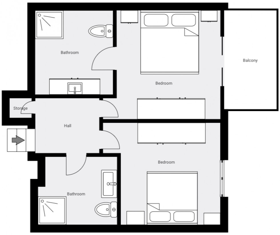
3 3

Discover the perfect blend of comfort, style, and an abundance of sunshine in this cleverly extended 3-bedroom, 3-bathroom villa located in the prestigious La Manga Club. Designed to cater to modern living, this property offers a spacious and inviting atmosphere ideal for families, retirees, or anyone seeking a peaceful yet vibrant community lifestyle. The traditional style villa boasts easy access throughout, with three generously sized bedrooms, ensuring ample accommodation for family members or guests. The extension adds valuable space to accommodate your lifestyle needs, whether for extra storage, a home office, or a cozy family area. El Rancho owners have access to nine communal swimming pools, set within established gardens laid to lawn, perfect for soaking up the famous winter sun that La Manga Club enjoys year-round.  The location of this villa further enhances its appeal, you will find it nestled in a tranquil area, yet close enough to the centre. benefiting from easy access to the La Manga Club’s renowned amenities including golf courses, tennis courts, restaurants, and shops.  Ideal for those dreaming of a winter sun getaway or a permanent residence in a sought-after resort community, this home combines practicality with the joys of outdoor living. 

  • Extended
  • 3 Bedrooms
  • 3 Bathrooms
  • 9 Communal Swimming Pools
  • Winter Sun
  • Easy Access
  • Tranquil
  • Family home
Floorplan for La Manga Club, Cartagena Floorplan for La Manga Club, Cartagena Floorplan for La Manga Club, Cartagena

Get an online valuation

Find out how much your property is worth